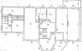
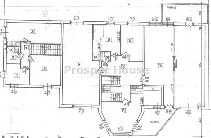
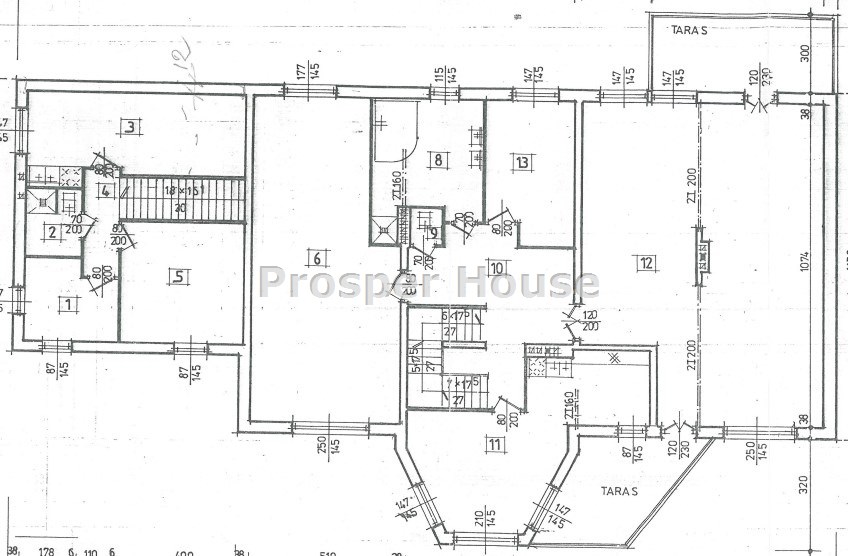
Opis nieruchomości
Piękny, po remontach, duży budynek z ogromnymi możliwościami adaptacyjnymi pod różnego typu usługi np. dom spokojnej starości, prywatna szkoła, przedszkole, klinika, filia biura itd.
Położony na ogrodzonej i zagospodarowanej działce o powierzchni około 1350m2.
A wszystko to w bezpośrednim sąsiedztwie lasu.
70m od przystanku autobusowego.
Nieruchomość posiada dwa oddzielne wjazdy/wyjazdy.
Dom dwupiętrowy + poddasze.
11 pokoi:
- 2 salony
- 1 sala sportowa z tablicą do koszykówki
- 1 sala do aerobiku (wyposażona w aneks kuchenny)
- 1 biblioteka
- 1 kuchnia połączona z jadalnią
- 5 sypialni
dodatkowo:
- 3 łazienki (dwie wyposażone w deszczownice oraz wanny, jedna w tylko w deszczownice)
- 2 WC
- 2 duże tarasy
- 2 balkony
- 1 hol
- 2 duże przedpokoje
Garaż w budynku na dwa auta + miejsca postojowe na działce (możliwość wynajęcia dodatkowej powierzchni pod jeszcze większy parking).
W budynku zastosowano ogrzewanie podłogowe oraz naścienne.
Świeżo zamontowana rekuperacja i klimatyzacja.
Zainteresowanych zapraszam do kontaktu po więcej informacji.
(cena 20.000 netto)
Nota prawna
Opis oferty zawarty na stronie internetowej sporządzany jest na podstawie oględzin nieruchomości oraz informacji uzyskanych od właściciela, może podlegać aktualizacji i nie stanowi oferty określonej w art. 66 i następnych K.C.Szczegóły



