








Opis nieruchomości
Ząbki, ul. Powstańców. Chronione osiedle (JW Construction).Bardzo ładne, dwupokojowe mieszkanie położone na parterze budynku.
Słoneczne, z bardzo dobra energią.
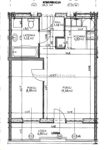
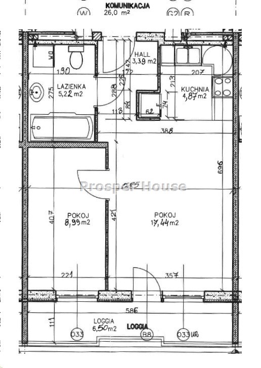
Rozkład:
salon z kuchnią, hall (z dużą szafą wnękową). łazienka (z wanną), sypialnia. Z salonu wyjście na loggię.
Mieszkanie ma całkowicie nowe/wyremontowane: kuchnie i łazienkę.
Polecam do celów mieszkaniowych własnych jak i na wynajem.
Naziemne miejsce postojowe.
Opłaty eksploatacyjne (czynsz administracyjny) - 500 zł/mąc
Jako biuro nieruchomości pobieramy za usługę pośrednictwa wynagrodzenie w formie prowizji.